Замена предохранителей Форд Фокус 3
Процесс замены предохранителей на ФФ 3 не сложен. Для этого не требуются дополнительные инструменты, а сама процедура занимает до 10 минут времени. Периодичность замены никак не регламентируется. Делается это уже по факту выхода из строя запчасти.
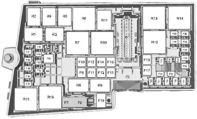
Расположение предохранителей Ford Focus 3
Предохранители Focus 3 находятся в двух блоках — под капотом справа, и в салоне под бардачком. Расположение предохранителей форд фокус 3 на схемах показано ниже.

Схема расположения предохранителей в салонном блоке. Наиболее часто заменяемые: F56 — топливный насос (бензонасос); F60 — Освещение салона, блок управления в двери водителя, освещение перчаточного ящика, фоновая подсветка, потолочный блок управления; F61 — прикуриватель, задняя розетка; F71 — система кондиционирования воздуха; F74 — дальний свет фар; F75 — передний противотуманный свет; F76 — лампы заднего хода; F77 — омыватель лобового стекла, омыватель заднего стекла.

Схема предохранителей в моторном отсеке ФФ 3. Наиболее часто заменяемые: F20 — звуковой сигнал; F21 — выключатель ламп стоп-сигнала; F46 — передние стеклоподъемники, вентилятор системы охлаждения; F15 — вентилятор системы охлаждения (для мотора 1.0L EcoBoost); F15 — реле стартера. F39 — блок управления фарами.
Какие предохранители ставить на Ford Focus 3?
Купить оригинальный блок предохранителей салона с артикулом 1802554 можно в среднем за 26000 руб. Но в новом состоянии запчасть на рынке почти не встречается, поэтому можно приобрести б/у за 6000 — 7000 руб. Аналогичная ситуация и с блоком предохранителей моторного отсека — CV6Z14290PB. Цена за новую запчасть — 36000 руб., в б/у состоянии — 9000 — 11000 руб.
Как заменить предохранители на Форд Фокус 3
Замена предохранителя в подкапотном блоке Фокус 3 делается следующим образом — сначала нужно открыть блок, нажав на защелку. Там должны находиться щипцы для замены предохранителей. Если их нет, можно обойтись плоскогубцами. Щипцами нужно взять нужный предохранитель и просто вытащить.
Проверка предохранителя осуществляется при помощи визуального осмотра. Особое внимание обратить на полоску внутри. Если она повреждена — значит он перегорел. Целая полоска не всегда означает, что он исправен, так как может быть совсем небольшое повреждение, незаметное для глаз. И если есть подозрение именно на этот предохранитель, его лучше заменить новым. Перед установкой нового “преда” нужно убедится, чтобы он был таким же по номиналу.
Предохранители в салоне меняются аналогичным способом, только предварительно нужно снять покрытие на полу. Подробно процесс замены показан на фото инструкции ниже (на примере Форд Фокус 3 2012 года).
Снять покрытие с желтой заклепки.
Предохранители заменены.
Закрыть крышку блока предохранителей.
Вернуть щицпы на место.
Покрытие на месте.
Вернуть фиксаторы на место.
Установить покрытие обратно.
Вставить новый предохранитель.
Вытащить предохранитель и проверить уже известным образом.
Взять щипцами предохранитель.
Блок предохранителей в салоне.
Убрать покрытие.
Блок предохранителей Форд Фокус 3 находится под капотом справа, с «водительской» стороны, возле корпуса воздушного фильтра и АКБ.
Второй фиксатор.
Сжать и вытащить фиксатор.
Блок предохранителей в салоне находится в районе, где располагаются ноги переднего пассажира.
Вставить новый предохранитель.
Посмотреть на свет сквозь предохранитель. Если металлическая полоск повреждена, тогда предохранитель нужно заменить таким же по номиналу.
Вытащить предохранитель.
Ухватить щипцами предохранитель.
Работают как прищепка.
Взять пластиковые щипцы.
Открыть крышку.
Нажать на клипсу на крышке блока предохранителей.
Было ли это руководство полезным?
Ваш отзыв помогает нам улучшать контент.
Похожие материалы
Обсуждение (2)
Где находится предохранитель от радио и диска на фф3
Вырубилась аудиосистема. часы, меню работает. Радио и диск нет. фокус 3 стейшн 11 год.За 15-20 минут до того поменял язык на русский.