Пропала зарядка аккумулятора в Фиат Стило
Fiat Stilo Stilo
Пропала подзарядка аккумулятора. Можно ли схему подзарядки аккумулятора? Как идет провод от аккумулятора на катушку возбуждения генератора? Через предохранитель, замок зажигания, или как то иначе?
Лампочка зарядки (не зарядки) горит на панели приборов? Мультиметром замер делали на генераторе и на аккумуляторе?
–
Анатолий.sib
7 лет назад
На панели приборов загорелось почти все. Аккумулятор сел. Генератор подзарядку не дает.
Где имменно нужно сделать замер на генераторе?
–
Allwoll
7 лет назад
При запущенном моторе, щуп прибора (в режиме вольтметра) плюсовой, на плюсовой генератора, минусовой щуп на корпус генератора. Исправный генератор должен выдавать напряжение от 13,7 до 14,3 вольт (может до 14,5).
–
Анатолий.sib
7 лет назад
Плюсовой он там самый толстый провод. Вот у вас там генератор примерно 100-амперный (или даже больше). Представляете какой это ток может проходить? Попроще чтобы более понятно - провод должен быть толщиной где-то с карандаш.
–
Анатолий.sib
7 лет назад
А тонкий провод подходит. Он идет на катушку возбуждения ротора? Как он проходит, через замок зажигания, предохранитель?
Хочу сначала проверить приходит ли напряжение на катушку возбуждения генератора.
–
Allwoll
7 лет назад
Это там через лампочку через замок зажигания. Но вам главное надо узнать РАБОТАЕТ ли ГЕНЕРАТОР. Повторяю: для этой главной цели, надо при работающем моторе замерить напряжение на генераторе; и это совсем не сложно: на генераторе толстый провод прикручен гайкой, это "плюс", а минусовой щуп вольтметра приткнуть в любое место корпуса генератора в металлическую его часть (а не в пластик). Ещё раз: мотор работает - делаете замер напряжения. На этом сегодня всё, у меня в городе уже очень поздно - ночь, иду спать.
–
Анатолий.sib
7 лет назад
Меня все таки интересует схема подачи напряжения на катушку возбуждения генератора, т.к. если на нее напряжение не приходит, то и нет смысла его искать на выходе генератора.
–
Allwoll
7 лет назад
Зачем идти сложным путём, копаться в "кишках" автомобиля когда можно просто напросто замерить напряжение на генераторе?
–
аноним
7 лет назад
У меня такое ощущение, что мы о разных деталях переписываемся. Вам всего лишь надо запустить двигатель и сделать замер напряжения на генераторе, увидеть сколько вольт он выдаёт. Всё!
–
Анатолий.sib
7 лет назад
А выходами, входами, роторами, статорами, диодами, щётками - пусть занимается человек который чинит генераторы и стартеры.
–
Анатолий.sib
7 лет назад
Уважаемый Анатолий.
Если для Вас роторы, статоры это тяжело, то не о чем говорить!
–
Allwoll
7 лет назад
Это для меня не тяжело. Я знаю что означает каждое из этих слов. Знаю где каждая из этих деталей установлена и какую роль она выполняет. Но вы слишком глубоко копаете и в тоже время не знаете как сделать замер напряжения на генераторе. Вот ваши слова: Где имменно нужно сделать замер на генераторе? Слесарь не должен заниматься электрикой. Механик по автомобилю не должен глубоко копаться в электрике и в электронике, для этого есть специально обученные люди. Это как в Армии, командир роты, полка не должен бежать в одном строю с солдатами и размахивать винтовкой со штыком, он не должен варить кашу, он не должен стирать солдатам портки и не должен ремонтировать технику. Разбираться во всех делах он конечно должен и многое умеет, но его задача руководить процессом, а не вникать в портки, в кашу, и в роторы всякие наконец.
–
Анатолий.sib
7 лет назад
Вот например как и где именно вы снимаете напряжение? И как это вы на якоре (роторе сделали замер не разобрав генератор?
–
Анатолий.sib
7 лет назад
Послушайте пожалуйста, Анатолий. Я не хотел Вас чем то обидеть и т.п..
Я попросил лишь схему, если Вы имеете.
Попросил потому, что привык сам разбираться во всех вопросах, т.к. механик один вопрос, который стоит денег, и не всегда это стоит этого, а второе -это то, что я сделаю это гораздо лучше, потому что я делаю для себя, а механик нет.
–
Allwoll
7 лет назад
Нет никаких обид. Вы если конкретный ответ хотите получить, то и объясняйте более конкретнее, что хотите узнать. Схему я вам дал , и что, вам ещё нужна какая-то схема??? Могу выдать ещё, если требуется. И вот если вы там что-то самостоятельно делаете, то почему не отвечаете на мои вопросы, где и как вы делали замер напряжения??? Генератор на машине или снят? Пока был на машине - вот где был главный замер напряжения, а похоже вы всё-ещё так и не сделали этого, а если сделали, то где результаты. Так что судя по всем перепискам - это вы тормозите процесс оздоровления генератора, а не я. А мне совершенно нет выгоды долго валандаться с одним вопросом. Задан человеком правильно вопрос - ответил ему, он доволен, устранил неисправность - всё, вопрос закрывается. Тянучка совсем ни к чему.
–
Анатолий.sib
7 лет назад
Меня интересует схема подзарядки аккумулятора? Как идет провод от аккумулятора на катушку возбуждения генератора? Через предохранитель, замок зажигания, или как то иначе?
Вот и все! А вы начинаете рассусоливать темы замеров и т.д.
–
Allwoll
7 лет назад
Я уже давно вам и схему дал и написал обо всём, и даже больше. Мне так кажется что вы уже и сами не знаете что хотите!
–
Анатолий.sib
7 лет назад
По катушке возбуждения смотрите свой комментарий 10.09.2018. в 19:37 - "...приходит ли напряжение на катушку возбуждения генератора. И в этот же день 10.09.2018.в 19:51 я вам ответил ... там через лампочку через замок зажигания...". Ну то есть понятно: что включаете замок зажигания, ток пошёл через лампочку на щитке приборов, далее на генератор на катушку возбуждения. Ну и какие ещё объяснения вам нужны, всё написано давно. Кто из нас двоих -рассусоливает?
–
Анатолий.sib
7 лет назад
1 Ответы
0
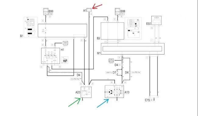
Судя по схеме «Fiat Stilo», нет там ничего.
Провод напрямую идёт от аккумулятора к стартеру и к генератору параллельно.

Пометил:
красной стрелкой (А1) — аккумулятор
зелёной стрелкой (А20) — генератор
синей стрелкой (А10) — генератор
задан 7 лет назад
Только сейчас заметил, что я сделал небольшую ошибку в ответе - зеленой стрелкой (А20) - это стартер на схеме (описку сделал написал 2 генератора). Но суть всё-равно остаётся, от аккумулятора и на генератор идёт прямой провод, правда с заходом в "гости" к стартеру. Вы проверьте там соединительные провода, не обросли ли они окислами, ржавчиной и грязью. Если так, то надо отсоединить и зачистить, и провода и места соединений.
–
Анатолий.sib
7 лет назад
Похожие материалы
Как доливать воду в аккумулятор NISSAN KE24170E00EF?
Qa
2.6k
2
Чем и как делать диагностику двигателя Фиат Стило?
Qa
2.5k
3
Какие громкоговорители стоят в Фиат Стило?
Qa
1.6k
1
Как подключить ELM 327 на Фиат Стило?
Qa
2.1k
1
Загорается индикатор неисправности освещения сзади в Фиат Стило
Qa
1.4k
1
Не моргают поворотники при закрытии или открытии машины
Qa
2.3k
1