Как поднять давление на ПГУ, тугая педаль сцепления?
MAN TGA TGA
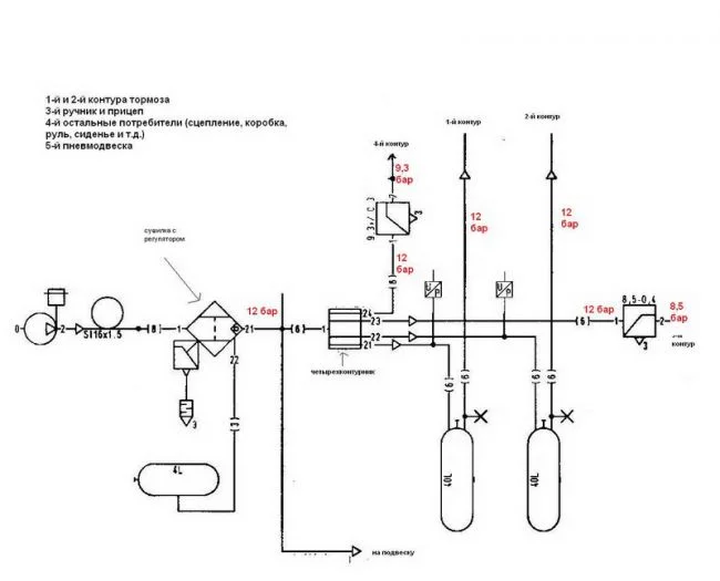
Стала тугая педаль сцепления — перебрали ПГУ, прокачали, заменили сцепление — результатов нет. Нужно поднять давление воздуха на ПГУ, как это сделать? Где стоит регулятор давления и как регулировать?
1 Ответы
0
Нужно определить сначала общее давление воздуха на четырех контурник (или пяти контурник), может оно низкое, если низкое, то проблема может быть в компрессоре, в клапане на осушите (рано сбрасывает давление). Если в норме, то проверить давление в четвертом контуре, должно быть примерно 9,3 бар, если ниже, то проблема может быть в клапане четырех контурника.

задан 5 лет назад
Похожие материалы
Как прокачать скорости в МАН ТГА?
Qa
9.6k
1
Делает рывок, при трогании с места, МАН
Qa
3.4k
1
Трансмиссионное масло 75W90: описание, характеристики, рейтинг лучших
Статьи
587k
404
18
Как проверить опорный подшипник
Статьи
443.8k
196
2
Смазка петель дверей
Статьи
275.6k
185
11
Масло для коробки передач
Статьи
240.1k
259
11