Не работает обогрев заднего стекла Логан
Renault Logan Logan I
Во время включения обогрева заднего стекла заметил, что не все нити работают. На днях же обогрев полностью перестал работать. Какая может быть причина? Есть схема какая то, чтобы проверить?
2 Ответы
0
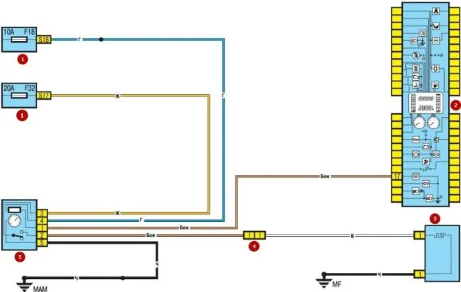
Наиболее частой причиной является выход из строя 30А предохранителя, который находится в салонном блоке. На схеме ниже он расположен под номером F32. Сам блок находится в торце торпедо, со стороны водителя. Для доступа к нему нужно открыть водительскую дверь, и снять крышку.

- F1 — стеклоочиститель, обмотка реле обогрева заднего стекла.
- F2 — приборная панель, обмотки реле К5 топливного насоса и катушки зажигания, система управления двигателем от замка зажигания (ЭБУ).
- F3 — лампы стоп-сигналов, лампа заднего хода, омыватель лобового стекла.
- F4 — блок управления подушками безопасности, лампы поворотников, диагностический разъем, иммобилайзер.
- F5 — F8 — резерв;
- F9 — ближний свет в левой фаре, лампа включения ближнего света на панели, насос омывателя фар.
- F10 — ближний свет в правой фаре.
- F11 — левая фара, дальний свет, лампа включения дальнего на панели приборов.
- F12 — правая фара, дальний свет.
- F13 — задние электрические стеклоподъемники.
- F14 — передние электрические стеклоподъемники.
- F15 — ABS.
- F16 — Подогрев передних сидений.
- F17 — звуковой сигнал.
- F18 — левые габариты.
- F19 — правые габариты.
- F20 — задний противотуманный фонарь.
- F21 — обогрев боковых зеркал.
- F22 — резервный.
- F23 — резервный, сигнализация.
- F24 — F27 — резервный.
- F28 — свет в салоне.
- F29 — общее питание.
- F30 — блокировка дверей и багажника.
- F31 — передние противотуманные фары.
- F32 — обогрев заднего стекла.
- F33 — F35 — резервный.
- F36 — кондиционер, отопитель
- F37 — электропривод зеркал.
- F38 — магнитола.
- F39 — отопитель, кондиционер.
задан 5 лет назад
0
Еще одной причиной неисправности обогрева заднего стекла Логана являются обрывы в электроцепях. Поэтому, нужно при помощи мультиметра проверить напряжение на сами элементы.
Схема цепи питания обогрева заднего стекла с расшифровкой (для увлечения нужно на нее нажать):
- Блок предохранителей в салоне.
- Комбинация приборов.
- Электрообогрев заднего стекла.
- Разъем электропроводки панели приборов/левой задней части кузова.
- Выключатель электрообогрева заднего стекла.
задан 5 лет назад
Похожие материалы
Что значит ошибка «d--to» на дисплее Рено Логан?
Qa
1.3k
2
Центральный замок закрывает двери после 10 секунд
Qa
354
2
Не горит левый поворот Рено Логан
Qa
352
1
Постоянно горит на щитке приборов лампочка ручника в Рено Логан
Qa
432
2
Отвалился контакт обогрева заднего стекла Рено Логан
Qa
784
3
Мигает лампочка имобилайзера в Рено Логан 2007г
Qa
3.2k
1
