Не щелкает реле и не крутит стартер Форд Турнео Коннект
Ford Tourneo Connect Tourneo Connect I
В принципе практически понятно что скорей всего проблема с проводкой. Ситуация банальна, при повороте ключа зажигания, реле не щелкает, стартер не крутит. Если коротнуть управляющий провод на втягивающем с "+" от АКБ на втягивающем, машина заводится.
Полез по схемам Форда, на том месте где указывается реле стартера, его нет а именно R1. Но раньше точно что то щелкало (реле). Не приходит питание при повороте ключа на управляющий провод втягивающего реле. При этом видимо контактную группу исключает из проблематики, т.к. при повороте ключа, вся панелька работает, фары горят.
Вопрос собственно заключается в цепи питания этого управляющего провода и существовании этого загадочного реле под капотом и в моторном отсеке. На сколько я понимаю, при повороте ключа с АКБ питание подается на предохранитель F8 (в моторном отсеке, предик ЖИВ), далее по идее должно идти на промежуточное реле стартера, дальше на + управляющей клеммы втягивающего реле.
6 Ответы
Проверьте предохранитель №8 и №12 под капотом.
Вы реле где ищите?
Оно должно быть в салоне слева от руля и его номер №1. И если вы раньше его слышали, то значит должно присутствовать реле (может до вас там делали какую-то рокировку?)

А предохранитель на реле, действительно №8, как вы и написали в моторном отсеке.
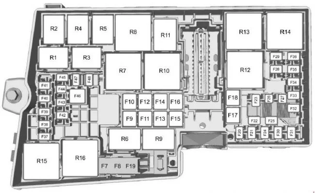
Вот фото

Если у вас в моторном отсеке такой блок, тогда реле стартера R10

Но тогда предохранитель на реле стартера №13
Вот и я в замешательстве, вроде бы должно быть реле, не хочется разворотить пол машины. Форд американец, в документации к нему такое же расположение предиков и реле.
Нет под крышкой маркировка — F8