Не работает освещение приборной панели Тойота Королла 10
Toyota Corolla Corolla X (E140, E150)
Здравствуйте. Несколько дней не работает освещение приборной панели при включении дальнего света и навигационной системы. Какой предохранитель отвечает не в порядке? Расположение предохранителей в моем авто в салоне тип В.
Заранее благодарен
1 Ответы
0
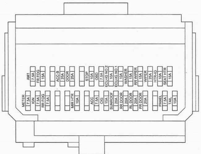
Проверьте в салоне предохранитель METER, PANEL, TAIL, так же проблема может быть в самом щитке приборов, в его разъеме.

задан 7 лет назад
Добрый вечер. Я конечно тоже зацепился за этот вариант(посмотрел документацию к авто). Но в салоне моего авто другое расположение предохранителей - тип Б(только 3 предохранителя и среди
них нет METER TAIL PANEL). И под крышкой капота также другой набор предохранителей.
–
аноним
7 лет назад
А где блок предохранителей тип А (http://prntscr.com/m22gme) , там нет ничего? Если нет, то за щиток приборов приборов может отвечать электронный блок управления кузовным оборудованием. Попробуйте минут на 5 снять клемму с аккумулятора.
–
Михаил Самсонов
7 лет назад
Вам лучше по месту это проверить, возможно будет только один блок. Посмотрите около диагностического разъема.
–
Михаил Самсонов
7 лет назад
А напряжение на предохранителях есть? Тогда проблема может быть еще в самом щитке приборов. Остается попробовать снятие клеммы.
–
Михаил Самсонов
7 лет назад
toyota corolla 2010 benzine.
Здравствуйте.
В этом-то и дело что я не могу понять где находится блок тип А(по документам блоки А и Б находятся в салоне слева от руля снизу). Но я вижу только блок типа Б.
–
kemmler
7 лет назад
Похожие материалы
Предохранители Тойота Королла 150
Статьи
249.3k
265
6
Периодически появляется P0171 в Тойота Королла 10
Qa
471
2
Замена батарейки в ключе Тойота Королла
Руководства
18.5k
14
2
Сменил робот на механику щиток приборов кажет ошибку
Qa
260
1
Как снять крышку предохранителя омывателя фар Тойота Королла 10?
Qa
1k
1
Загорается только правая лампочка габаритов в Тойота Королла 10
Qa
601
1